Reet - Huis

Donkerstraat 12/A

€ 515.000

Te koop

€ 515.000

Te koop

Beschrijving

Nieuwbouwwoning, gesloten bebouwing, nabij het centrum van Reet, A12 en E19.
De locatie is zeer interessant omwille van openbaar vervoer, scholen, winkels, sportaccommodatie, fiets- en wandelroutes…
Deze woning wordt gebouwd samen met nog 3 andere woningen, HOB en GB (groepsproject).
Bijkomend kan u als koper de keuze van materialen (vloeren, keuken, badkamer en deuren) zelf bepalen als u op plan aankoopt of bij aanvang van de werken.
De ruwbouwfase start voorjaar 2025.
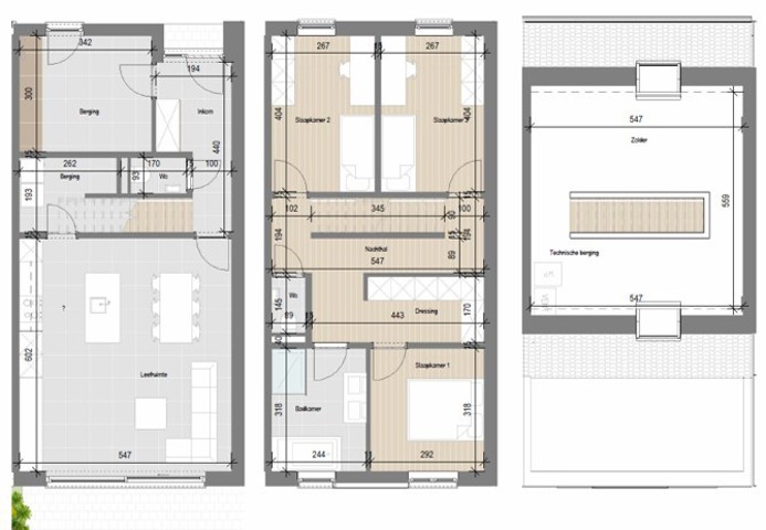
Indeling: inkomhal met gastentoilet en vestiaire, leefruimte met open keuken en berging.
1st V: 3 slaapkamers, badkamer met ligbad en douche, apart toilet en dressing.
Zolder: vaste trap naar zolderverdieping met 2 dakramen en technische berging.
Bijkomende troef is de inpandige fietsenstalling van 11m².
> Verkoop onder BTW (21%) en registratie .
Tot slot moet u pas betalen bij voorlopige oplevering m.a.w. ‘betaal bij sleutel’ wat een enorme meerwaarde is betreffende uw financiering.

Algemene kenmerken

Bewoonbare opp.182,48 m²

Grond opp.133 m²

Bouwjaar2025

Gesloten bebouwing

Tuin

Terras1

Interieur

Slaapkamers4

Badkamers1

Badkameralle comfort

Zolder

Water

Elektriciteit

Riolering

Energie

Type schrijnwerkerijaluminium

Type verwarmingvloerverwarming

Dubbele beglazing

Certificaten

Elektrische keuringja, conform

Stedenbouw

Voorkooprecht

Bestemmingwoonuitbreidingsgebied

Overstromingsrisico 2023Klasse A (geen kans)

O-Peilniet gelegen in een overstromingsgevoelig gebied

G-scoreA

P-scoreA

Attesten

WO 4.pdf download